wie vielleicht einige mitverfolgt haben, wurde mein bestehendes Heimkino in den letzten Monaten vor allem um weitere nuVero-Lautsprecher, zuletzt die beiden AW-17, erweitert. Gegenüber der Ausgangssituation mit nur einem Subwoofer und im Surroundbereich mit 2 verschiedenen Marken war das bereits eine siginifikante Verbesserung im Gesamtbild des Klanges und im Tiefgang natürlich
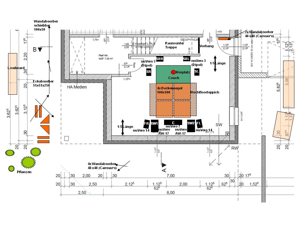
Hier meine derzeitige Konfiguration (siehe auch Galerie für Reallife-Bilder): Nicht zuletzt wegen der zusätzlichen Nutzung des Raumes als Arbeitsszimmer und Sportraum, habe ich mir nochmals über die Aufstellung im Raum Gedanken gemacht und einfach mal virtuell des Resetbutton gedrückt. Was wäre, wenn ich die Anordnung einfach um 90° drehe? Das hätte gleich mehrere Vorteile... den Raum kann ich besser aufteilen in Sportbereich links, Kino mittig und Arbeitsbereich rechts. Und...
Da die Lautsprecheranordnung das Wichtigste sind, habe ich schonmal die nach meiner Ansicht theoretisch guten Positionen in die Grafik eingezeichnet.
Der Abstand vom Hörplatz zu den 14'ern sowie zur Leinwand (2,40m Breite) sind übrigens ähnlich zur jetzigen Konfiguration - sollte also auch gefühlsmäßig passen. Natürlich habe ich jetzt nur die 4,50m Raumbreite zur Verfügung, anstatt vorher über 7m zu verfügen. Aber, ich denke, dass ich trotzdem (oder gerade deshalb?) einen besseren Klang erzielen kann. Übrigens, der Hörplatz und die Lautsprecherfront sind jeweils 1/5 von der Wand weg (90cm). Ich verspreche mir davon klangtechnisch:
+ breitere Bühne
+ luftigeres Klangbild vor allem der 14'er und des 7'ers
+ mehr Homogenität insgesamt
Nachteilig könnten zum einen die nach oben im Frequenzbereich wandernden Moden sein (vormals Längsmoden sind jetzt Quermoden) und zum anderen der kompaktere Aufbau des Surroundbereiches. Deshalb habe ich bei letzterem mal ins Blaue hinein auf 4x Dipolbetrieb gesetzt, um die Diffusität zu wahren.
Letztlich kann ich das alles natürlich nur durch Realisierung der neuen Aufstellung ausprobieren, aber...
Ich hätte gerne Eure Meinung dazu vorher gehört und ggf. noch Tipps für die nun auch zu ändernde Positionierung der Absorber.
Bin ich grundsätzlich auf dem richtigen Dampfer oder beinhaltet die Idee noch Schwachstellen?
Sollte ich das Lowboard wieder zwischen die 14'er und die 17'er stellen oder lieber frei lassen?
Evtl. hatte ich angedacht, jeweils einen dunklen schiebbaren Vorhang links und rechts neben den 14'er keilförmig zum Hörplatz zu anzubringen, damit einerseits die 14'er mehr Direktschall zum Hörplatz transportiert und andererseits das Kinofeeling nicht durch seitlichen Blick auf Schreibtisch oder Sportgerät abgelenkt wird - sinnvoll oder bereits wegen Deckensegel und Hochfloorteppich zu stark dämpfend?

